SINGLE SLOPE ROOF ADU

Price :

Category :

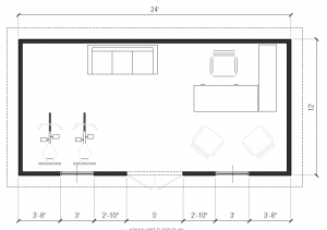
Size :

This Affordable, Lightweight, Steel Framed, Backyard Kit was developed with a multitude of uses in mind. Home Office, Your Own Home Based Exercise Studio, a livable Unit for a Family member, or an AirBNB Unit Where Allowed

This 12′ x 24′ Eco Kit Features:

  • 11′ to the Peak
  • 8’ Rear Eve Height
  • 6” CEE Framing

*We Can Add or Modify Window and Door Openings as Needed

Designed to Be an Easy to DIY Kit!

Request a Free Quote to Confirm Current Pricing