BUILDING STYLES
The American Barn Style
Our American Barn Style Buildings are Often Used Create Unique Livable Units.
Combining Storage and a Living Quarters in the Same Barndominium package.
BUILDING STYLES
Gambrel Buildings
These Gambrel Style Buildings are Often Designed to Meet Several Needs in One.
They Make Great Garage & Apartment Buildings, or Awesome 2 Story Barndominium Units
BUILDING STYLES
Gable Roof Buildings
These Gable Roof Style Buildings have Been Designed for Shops, Industrial Buildings, Commercial Buildings, Garages, Accessory Dwelling Units, and Numerous other Applications
BUILDING STYLES
MODERN LIENTO
These Modern Style Single Sloped Buildings are Great or Barndominium, Shops, Garages, and Backyard Casitas
Custom Designs by NuEco
Lightweight Steel Micro Cabin Kits
STEEL ECO MICRO CABIN
This Affordable, Lightweight, Steel Framed, Micro Cabin was developed with a multitude of uses in mind. It can be used as a Mini Cabin in the Woods, a Summer Retreat on Your Land, or a High ROI Cash Flowing AirBNB Camping or Glamping Cabin!
Easy to DIY!!!
10 x 10
Request a Free Quote to Confirm Current Pricing
STEEL ECO MICRO CABIN
This Affordable, Lightweight, Steel Framed, Micro Cabin was developed with a multitude of uses in mind. It can be used as a Mini Cabin in the Woods, a Summer Retreat on Your Land, or a High ROI Cash Flowing AirBNB Camping or Glamping Cabin!
Easy to DIY!!!
10 x 10
STEEL ECO MICRO CABIN
This Affordable, Lightweight, Steel Framed, Micro Cabin was developed with a multitude of uses in mind. It can be used as a Mini Cabin in the Woods, a Summer Retreat on Your Land, or a High ROI Cash Flowing AirBNB Camping or Glamping Cabin!
Easy to DIY!!!
10 x 10
Steel Eco MICRO Cabin
This Affordable, Lightweight, Steel Framed, Micro Cabin was developed with a multitude of uses in mind. It can be used as a Mini Cabin in the Woods, a Summer Retreat on Your Land, or a High ROI Cash Flowing AirBNB Camping or Glamping Cabin!
Easy to DIY!!!
10 x 12
Request a Free Quote to Confirm Current Pricing
STEEL ECO MICRO CABIN
This Affordable, Lightweight, Steel Framed, Micro Cabin was developed with a multitude of uses in mind. It can be used as a Mini Cabin in the Woods, a Summer Retreat on Your Land, or a High ROI Cash Flowing AirBNB Camping or Glamping Cabin!
Easy to DIY!!!
10 x 14
Request a Free Quote to Confirm Current Pricing
STEEL ECO MICRO CABIN
This Affordable, Lightweight, Steel Framed, Micro Cabin was developed with a multitude of uses in mind. It can be used as a Mini Cabin in the Woods, a Summer Retreat on Your Land, or a High ROI Cash Flowing AirBNB Camping or Glamping Cabin!
Easy to DIY!!!
10 x 16
Request a Free Quote to Confirm Current Pricing
STEEL ECO MICRO CABIN
This Affordable, Lightweight, Steel Framed, Micro Cabin was developed with a multitude of uses in mind. It can be used as a Mini Cabin in the Woods, a Summer Retreat on Your Land, or a High ROI Cash Flowing AirBNB Camping or Glamping Cabin!
Easy to DIY!!!
12 x 16
Request a Free Quote to Confirm Current Pricing
On/Off Grid Tiny Cabins
Steel Eco Tiny Cabin
This Affordable, Lightweight, Steel Framed, Tiny Cabin was developed with a multitude of uses in mind. A Mini Cabin in the Woods, a Summer Retreat on Your Land, or a High End Cash Flowing AirBNB Cabin!
Easy to DIY!!!
15 x 30
Request a Free Quote to Confirm Current Pricing
STEEL ECO TINY CABIN
This Affordable, Lightweight, Steel Framed, Tiny Cabin was developed with a multitude of uses in mind. A Mini Cabin in the Woods, a Summer Retreat on Your Land, or a High End Cash Flowing AirBNB Cabin!
Easy to DIY!!!
20 x 30
Request a Free Quote to Confirm Current Pricing
STEEL ECO TINY CABIN
This Affordable, Lightweight, Steel Framed, Tiny Cabin was developed with a multitude of uses in mind. A Mini Cabin in the Woods, a Summer Retreat on Your Land, or a High End Cash Flowing AirBNB Cabin!
Easy to DIY!!!
20 x 39
Request a Free Quote to Confirm Current Pricing
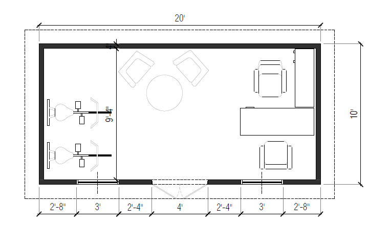
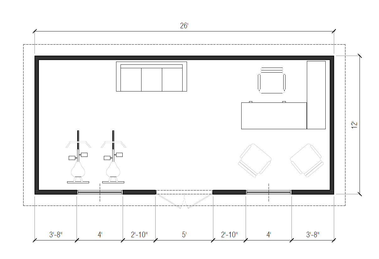
Backyard Office/Gym/ADU Kits
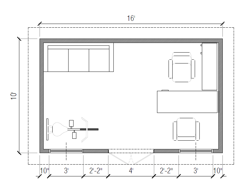
STEEL ECO BACKYARD KIT
This Affordable, Lightweight, Steel Framed, Backyard Kit was developed with a multitude of uses in mind. Home Office, Your Own Home Based Exercise Studio, a livable Unit for a Family member, or an AirBNB Unit Where Allowed
Easy to DIY!!!
10 x 16
Request a Free Quote to Confirm Current Pricing
STEEL ECO BACKYARD KIT
This Affordable, Lightweight, Steel Framed, Backyard Kit was developed with a multitude of uses in mind. Home Office, Your Own Home Based Exercise Studio, a livable Unit for a Family member, or an AirBNB Unit Where Allowed
Easy to DIY!!!
10 x 16
Request a Free Quote to Confirm Current Pricing
STEEL ECO BACKYARD KIT
This Affordable, Lightweight, Steel Framed, Backyard Kit was developed with a multitude of uses in mind. Home Office, Your Own Home Based Exercise Studio, a livable Unit for a Family member, or an AirBNB Unit Where Allowed
Easy to DIY!!!
10 x 20
Request a Free Quote to Confirm Current Pricing
STEEL ECO BACKYARD KIT
This Affordable, Lightweight, Steel Framed, Backyard Kit was developed with a multitude of uses in mind. Home Office, Your Own Home Based Exercise Studio, a livable Unit for a Family member, or an AirBNB Unit Where Allowed
Easy to DIY!!!
10 x 20
Request a Free Quote to Confirm Current Pricing
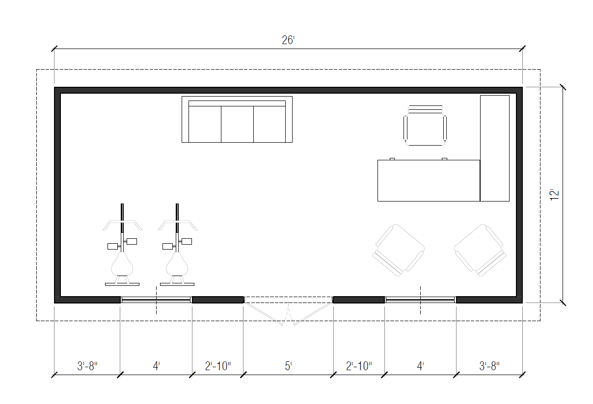
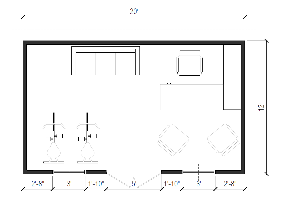
STEEL ECO BACKYARD KIT
This Affordable, Lightweight, Steel Framed, Backyard Kit was developed with a multitude of uses in mind. Home Office, Your Own Home Based Exercise Studio, a livable Unit for a Family member, or an AirBNB Unit Where Allowed
Easy to DIY!!!
12 x 20
Request a Free Quote to Confirm Current Pricing
STEEL ECO BACKYARD KIT
This Affordable, Lightweight, Steel Framed, Backyard Kit was developed with a multitude of uses in mind. Home Office, Your Own Home Based Exercise Studio, a livable Unit for a Family member, or an AirBNB Unit Where Allowed
Easy to DIY!!!
12 x 20
Request a Free Quote to Confirm Current Pricing
STEEL ECO BACKYARD KIT
This Affordable, Lightweight, Steel Framed, Backyard Kit was developed with a multitude of uses in mind. Home Office, Your Own Home Based Exercise Studio, a livable Unit for a Family member, or an AirBNB Unit Where Allowed
Made in The USA!!!
12 x 24
Request a Free Quote to Confirm Current Pricing
STEEL ECO BACKYARD KIT
This Affordable, Lightweight, Steel Framed, Backyard Kit was developed with a multitude of uses in mind. Home Office, Your Own Home Based Exercise Studio, a livable Unit for a Family member, or an AirBNB Unit Where Allowed
Easy to DIY!!!
12 x 24
Request a Free Quote to Confirm Current Pricing
STEEL ECO BACKYARD KIT
This Affordable, Lightweight, Steel Framed, Backyard Kit was developed with a multitude of uses in mind. Home Office, Your Own Home Based Exercise Studio, a livable Unit for a Family member, or an AirBNB Unit Where Allowed
Easy to DIY!!!
12 x 26
Request a Free Quote to Confirm Current Pricing
STEEL ECO BACKYARD KIT
This Affordable, Lightweight, Steel Framed, Backyard Kit was developed with a multitude of uses in mind. Home Office, Your Own Home Based Exercise Studio, a livable Unit for a Family member, or an AirBNB Unit Where Allowed
Easy to DIY!!!
12 x 26
Request a Free Quote to Confirm Current Pricing
STEEL ECO BACKYARD KIT
This Affordable, Lightweight, Steel Framed, Backyard Kit was developed with a multitude of uses in mind. Home Office, Your Own Home Based Exercise Studio, a livable Unit for a Family member, or an AirBNB Unit Where Allowed
Easy to DIY!!!
12 x 26
Request a Free Quote to Confirm Current Pricing
STEEL ECO BACKYARD KIT
This Affordable, Lightweight, Steel Framed, Backyard Kit was developed with a multitude of uses in mind. Home Office, Your Own Home Based Exercise Studio, a livable Unit for a Family member, or an AirBNB Unit Where Allowed
Easy to DIY!!!
12 x 26
Request a Free Quote to Confirm Current Pricing
STEEL ECO BACKYARD KIT
This Affordable, Lightweight, Steel Framed, Backyard Kit was developed with a multitude of uses in mind. Home Office, Your Own Home Based Exercise Studio, a livable Unit for a Family member, or an AirBNB Unit Where Allowed
Easy to DIY!!!
15 x 26
Request a Free Quote to Confirm Current Pricing
STEEL ECO BACKYARD KIT
This Affordable, Lightweight, Steel Framed, Backyard Kit was developed with a multitude of uses in mind. Home Office, Your Own Home Based Exercise Studio, a livable Unit for a Family member, or an AirBNB Unit Where Allowed
Easy to DIY!!!
15 x 26
Request a Free Quote to Confirm Current Pricing
STEEL ECO BACKYARD KIT
This Affordable, Lightweight, Steel Framed, Backyard Kit was developed with a multitude of uses in mind. Home Office, Your Own Home Based Exercise Studio, a livable Unit for a Family member, or an AirBNB Unit Where Allowed
Easy to DIY!!!
15 x 30
Includes an Optional 10 x 15 Side Porch
Request a Free Quote to Confirm Current Pricing
Barndominium Kits
STEEL ECO BARNDO KIT
This Affordable, Lightweight, Fire Resistant, Mold Resistant, Termite Resistant, Steel Framed, Barndominium Kit, is Designed to Be An Easy to Assemble Eco Structure
15’ wide x 50’ long main building 750 sq ft
Additional 15’ wide x 50’ long covered area for RV
Also Has a 15’ x 25’ 2nd story mezzanine for storage or livable space
*we can modify window and door openings as needed
Model #1550brnrv
Request a Free Quote to Confirm Current Pricing
STEEL ECO BARNDO KIT
This Affordable, Lightweight, Fire Resistant, Mold Resistant, Termite Resistant, Steel Framed, Barndominium Kit, is Designed to Be An Easy to Assemble Eco Structure
24’ wide x 30’ long 720 sq ft bottom floor
2nd Floor mezzanine 24’ wide x 30’ 720 sq ft loft
Covered 24’ x 6’ 144 sq ft exterior mezzanine porch
*we can modify window and door openings as needed
Model #720gambarndo
Request a Free Quote to Confirm Current Pricing
STEEL ECO BARNDO KIT
This Affordable, Lightweight, Fire Resistant, Mold Resistant, Termite Resistant, Steel Framed, Barndominium Kit, is Designed to Be An Easy to Assemble Eco Structure
24’ wide x 30’ long 720 sq ft bottom floor
24’ x 30’ long 720 sq ft mezzanine loft
2nd story loft covers the entire length and width of the building
*we can modify window and door openings as needed
Model # 720gamgaragebarndo
Request a Free Quote to Confirm Current Pricing
STEEL ECO BARNDO KIT
This Affordable, Lightweight, Fire Resistant, Mold Resistant, Termite Resistant, Steel Framed, Barndominium Kit, is Designed to Be An Easy to Assemble Eco Structure
24’ wide x 30’ long 720 sq ft
We have an option for additional 24’ wide x 30’ long 720 sq ft loft
Features a 30’ x 8’ covered porch
*we can modify window and door openings as needed
Model # 2430gamb
Request a Free Quote to Confirm Current Pricing
STEEL ECO BARNDO KIT
This Affordable, Lightweight, Fire Resistant, Mold Resistant, Termite Resistant, Steel Framed, Barndominium Kit, is Designed to Be An Easy to Assemble Eco Structure
24’ wide x 30’ deep 864 sq ft bottom floor
2nd story loft mezzanine 24’ x 15’ 360 sq ft loft
Features a 24’ x 6’ covered front porch
Also has (2) 30 ft long covered side patios
*we can modify window and door openings as needed
Model #864barndo
Request a Free Quote to Confirm Current Pricing
STEEL ECO BARNDO KIT
This Affordable, Lightweight, Fire Resistant, Mold Resistant, Termite Resistant, Steel Framed, Barndominium Kit, is Designed to Be An Easy to Assemble Eco Structure
24’ wide x 46’ long 1104 sq ft bottom floor
Features a (2) 16’ x 7’ custom door openings
*we can modify window and door openings as needed
Model # 1212barndoadu
Request a Free Quote to Confirm Current Pricing
STEEL ECO BARNDO KIT
This Affordable, Lightweight, Fire Resistant, Mold Resistant, Termite Resistant, Steel Framed, Barndominium Kit, is Designed to Be An Easy to Assemble Eco Structure
26’ wide x 32’ long Tall barn Style RV Storage
Features a 32’ x 8’ covered porch
Can Easily add a 2nd floor mezzanine loft for apartment or storage
*we can modify window and door openings as needed
Model # 2632gambrv
Request a Free Quote to Confirm Current Pricing
STEEL ECO BARNDO KIT
This Affordable, Lightweight, Fire Resistant, Mold Resistant, Termite Resistant, Steel Framed, Barndominium Kit, is Designed to Be An Easy to Assemble Eco Structure
28’ wide x 46’ long 1288 sq ft
We have also added a covered front porch that is 6 ‘ wide x 46’ long
* we can add window and door openings as needed
Model # 2846barndo
Request a Free Quote to Confirm Current Pricing
STEEL ECO BARNDO KIT
This Affordable, Lightweight, Fire Resistant, Mold Resistant, Termite Resistant, Steel Framed, Barndominium Kit, is Designed to Be An Easy to Assemble Eco Structure
30’ wide x 24’ deep 720 sq ft bottom floor
30’ wide x 24’ deep 720 sq ft top mezzanine loft apt or storage
Features (3) bottom floor garage bays
*we can modify window and door openings as needed
Model # 3024trplegamb
Request a Free Quote to Confirm Current Pricing
STEEL ECO BARNDO KIT
This Affordable, Lightweight, Fire Resistant, Mold Resistant, Termite Resistant, Steel Framed, Barndominium Kit, is Designed to Be An Easy to Assemble Eco Structure
30’ wide x 40' deep 1200 sq ft bottom floor
We have an option for additional 30’ x 13’ 390 sq ft loft
Features a 30’ x 6’ covered front porch
Also has (2) 40 ft long covered side patios
*we can modify window and door openings as needed
Model # 1200barndo
Request a Free Quote to Confirm Current Pricing
STEEL ECO BARNDO KIT
This Affordable, Lightweight, Fire Resistant, Mold Resistant, Termite Resistant, Steel Framed, Barndominium Kit, is Designed to Be An Easy to Assemble Eco Structure
30’ wide x 44’ long 1320 sq ft bottom floor
Enclosed Liento is 15’ wide x 44’ long 660 sq ft
2nd Story Interior Mezzanine is 30 wide x 29’ deep 870 sq ft
2nd Story Exterior Covered Porch Mezzanine is 30 wide x 6’ deep
*we can modify window and door openings as needed
Model # 3044dbl15
Request a Free Quote to Confirm Current Pricing
STEEL ECO BARNDO KIT
This Affordable, Lightweight, Fire Resistant, Mold Resistant, Termite Resistant, Steel Framed, Barndominium Kit, is Designed to Be An Easy to Assemble Eco Structure
30’ wide x 50’ long 1500 sq ft bottom floor
30’ x 24 2nd story Internal Mezzanine Loft
30 x 12 2nd story Covered External Mezzanine Loft/Patio
*we can modify window and door openings as needed
Model # 3050ftmez
Request a Free Quote to Confirm Current Pricing
STEEL ECO BARNDO KIT
This Affordable, Lightweight, Fire Resistant, Mold Resistant, Termite Resistant, Steel Framed, Barndominium Kit, is Designed to Be An Easy to Assemble Eco Structure
Overall 30’ wide x 50’ long 1500 sq ft bottom floor
Additional 1500 sq ft mezzanine loft for future livable
*we can modify window and door openings as needed
Model # 3050gambloftapt
Request a Free Quote to Confirm Current Pricing
STEEL ECO BARNDO KIT
This Affordable, Lightweight, Fire Resistant, Mold Resistant, Termite Resistant, Steel Framed, Barndominium Kit, is Designed to Be An Easy to Assemble Eco Structure
30’ wide x 60’ long 1800 sq ft bottom floor
We have an additional 30’ x 24’ 720 sq ft 2nd story loft
*we can modify window and door openings as needed
Model # 3060rgrlftmez
Request a Free Quote to Confirm Current Pricing
STEEL ECO BARNDO KIT
This Affordable, Lightweight, Fire Resistant, Mold Resistant, Termite Resistant, Steel Framed, Barndominium Kit, is Designed to Be An Easy to Assemble Eco Structure
30’ wide x 60’ long 1800 sq ft bottom floor
It has a 2nd story Loft that is 30’ wide x 24 long 720 sq ft loft
* we can add window and door openings as needed
Model # 3060grglftapt
Request a Free Quote to Confirm Current Pricing
STEEL ECO BARNDO KIT
This Affordable, Lightweight, Fire Resistant, Mold Resistant, Termite Resistant, Steel Framed, Barndominium Kit, is Designed to Be An Easy to Assemble Eco Structure
35’ wide x 40’ long 600 sq ft bottom floor
2nd story Mezzanine measuring 15’ wide x 26’-8” long
*we can modify window and door openings as needed
Model # 3540dbllt
Request a Free Quote to Confirm Current Pricing
STEEL ECO BARNDO KIT
This Affordable, Lightweight, Fire Resistant, Mold Resistant, Termite Resistant, Steel Framed, Barndominium Kit, is Designed to Be An Easy to Assemble Eco Structure
40’ wide x 68’ long 2080 sq ft bottom floor
40’ x 16’ covered porch
* we can add window and door openings as needed
Model #4068dbllientobrndo
Request a Free Quote to Confirm Current Pricing
STEEL ECO BARNDO KIT
This Affordable, Lightweight, Fire Resistant, Mold Resistant, Termite Resistant, Steel Framed, Barndominium Kit, is Designed to Be An Easy to Assemble Eco Structure
44’ wide x 50’ long 2200 sq ft bottom floor
Includes a Huge 20’ x 33’ 2nd story mezzanine 660+ sq ft loft
* we can add window and door openings as needed
Model #4450brndomez
Request a Free Quote to Confirm Current Pricing
STEEL ECO BARNDO KIT
This Affordable, Lightweight, Fire Resistant, Mold Resistant, Termite Resistant, Steel Framed, Barndominium Kit, is Designed to Be An Easy to Assemble Eco Structure
50’ wide x 30’ deep 1500 sq ft bottom floor
* we can add window and door openings as needed
Model #5030modliento
Request a Free Quote to Confirm Current Pricing
STEEL ECO BARNDO KIT
This Affordable, Lightweight, Fire Resistant, Mold Resistant, Termite Resistant, Steel Framed, Barndominium Kit, is Designed to Be An Easy to Assemble Eco Structure
50’ wide x 100’ 5000sq ft bottom floor
50’ wide x 25’ interior loft mezzanine
50’ wide x 20’ exterior covered 2nd Floor Mezzanine
*we can modify window and door openings as needed
Model# 120barndoshp
Request a Free Quote to Confirm Current Pricing
Steel Eco Garage Kits
This Affordable, Lightweight, Fire Resistant, Mold Resistant, Termite Resistant, Steel Framed, Garage Kit, is Designed to Be An Easy to Assemble Eco Structure
Made in The USA!!!
12 x 20
Request a Free Quote to Confirm Current Pricing
This Affordable, Lightweight, Fire Resistant, Mold Resistant, Termite Resistant, Steel Framed, Garage Kit, is Designed to Be An Easy to Assemble Eco Structure
Made in The USA!!!
14 x 22
Request a Free Quote to Confirm Current Pricing
This Affordable, Lightweight, Fire Resistant, Mold Resistant, Termite Resistant, Steel Framed, Garage Kit, is Designed to Be An Easy to Assemble Eco Structure
Made in The USA!!!
16 x 24
Request a Free Quote to Confirm Current Pricing
This Affordable, Lightweight, Fire Resistant, Mold Resistant, Termite Resistant, Steel Framed, Garage Kit, is Designed to Be An Easy to Assemble Eco Structure
Made in The USA!!!
Steel Building Kits
Steel Building Kit
This Affordable, Lightweight, Fire Resistant, Mold Resistant, Termite Resistant, Steel Framed, Building Kit, is Designed to Be An Easy to Assemble Eco Structure
17’ wide x 60’ long and a 10ft sidewall
So it’s basically the width of 2 shipping containers tied together and 15’ longer than the longest container available.
We have designed it to have its own engineered floor system to make it an elevated unit and easy to relocate if needed.
We can use standard style exterior metal trim or make it look like a shipping container if desired
we can add window and door openings as needed
Due to Volatility in the Building Material Prices
Request a Free Quote to Confirm Current Pricing
Steel Building Kit
This Affordable, Lightweight, Fire Resistant, Mold Resistant, Termite Resistant, Steel Framed, Building Kit, is Designed to Be An Easy to Assemble Eco Structure
24’ wide x 30’ long 720 sq ft bottom floor
24’ wide x 30’ long 720 sq ft mezzanine 2nd floor
*we can modify window and door openings as needed
Request a Free Quote to Confirm Current Pricing
Steel Building Kit
This Affordable, Lightweight, Fire Resistant, Mold Resistant, Termite Resistant, Steel Framed, Building Kit, is Designed to Be An Easy to Assemble Eco Structure
60’ wide x 50’ deep
Request a Free Quote to Confirm Current Pricing






































































