GABLE ROOF ADU

Price :

Category :

Size :

This Affordable, Lightweight, Steel Framed, Backyard Kit was developed with a multitude of uses in mind. Home Office, Your Own Home Based Exercise Studio, a livable Unit for a Family member, or an AirBNB Unit Where Allowed

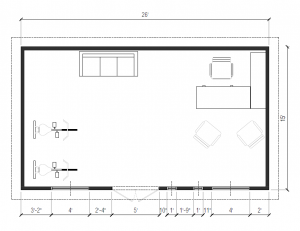
This 15′ x 26′ Backyard Eco Kit Features:

  • 12′-6” to the Peak
  • 9’ to Eve Height
  • 8” CEE Framing

*We Can Add or Modify Window and Door Openings as Needed

Designed to Be an Easy to DIY Kit!

Price = $18,709 (as of 6-1-22)

Request a Free Quote to Confirm Current Pricing